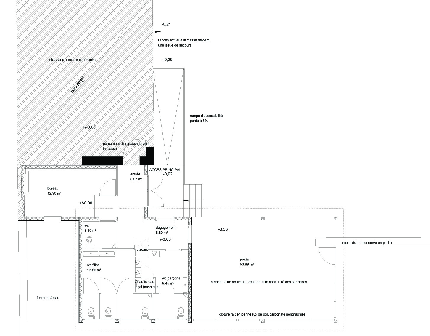
Le projet est la réalisation de nouveaux sanitaires, avec préau et bureau de direction (thème déjà réalisé auparavant, mais mise en forme tout à fait différente).
Le bâtiment existant date du début XXè, original et adapté à l’accueil d’une classe, il lui manque cependant des sanitaires dignes de ce nom, pour le moment, c’est une « cabane », pas isolée, avec des portes à mi-hauteur, donnant directement sur la cour de récréation.
A la suite de discussion avec le Conseil Municipal, l’agrandissement du projet par un nouveau préau a été évoqué, il sera la continuité du nouveau bâtiment.
ESQUISSE:










